PROYECTO PTE. ROCA 1055 DEPTO. 5
Rosario – Santa Fe
TIPO DE REFORMA: RECICLAJE TOTAL
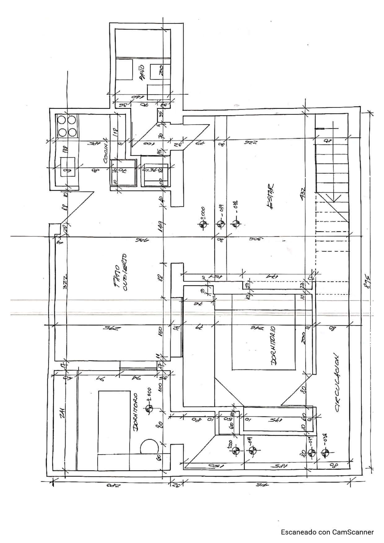
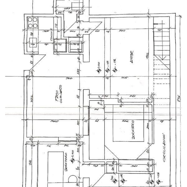
Tipo de inmueble original
Departamento de 1 dormitorios + Entrepiso + 1 baño + Patio
Estado
Estaba en obra, la propietaria se cansó de la obra y la vendió.
Presentaba filtraciones provenientes de la propiedad de arriba.
Algunos detalles de la obra existentes de mala calidad.
Aberturas de madera originales pero no completas.
Ubicación
Pte. Roca 1055 (entre San Juan y San Luis)
Rosario – Santa Fe – Argentina
Tipo de reforma
Finalización de obra total, mejora de lo existente.
Originalmente era una casa de 1 dormitorio + entrepiso, 1 baño y patio.
Sólo se pudieron rescatar aberturas y con las incompletas se crearon nuevas.
Tipo de inmueble luego de reformas
Casa de 2 dormitorios
Entre piso de grandes dimensiones
1 baño completo con bañera
Cocina independiente
Patio
Año de reforma
2025
